
営業時間 9:00 ~ 18:00
営業時間 9:00 ~ 18:00
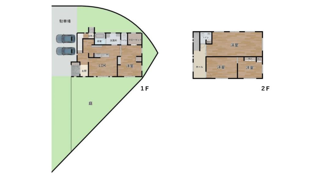
別玄関から2階へ直接出入り可能な独立動線のある住まい。自宅兼事務所、二世帯同居や自宅サロン、ヨガ教室にも最適。駐車4台可、新八代駅アクセス良好です。
熊本県八代市上野町
4LDK
2,650万円
540.89㎡(163.62坪)
164.50㎡(49.76坪)
【JR鹿児島本線】新八代駅 徒歩30分
水前寺ラボ
〒862-0956 熊本市中央区水前寺公園 25-2
事務所・自宅サロン、多彩な暮らし方を叶える住まい
玄関とは別に、外階段から2階へ直接アクセスできる設計。
親世帯・子世帯で生活空間を分けた二世帯同居や、
自宅の一部を「ネイル・整体・教室・事務所」などとして使える住居兼事業スペースにも最適です。
LDKを中心とした明るく開放的な間取りに加え、
各室にゆとりがあり、リモートワークや趣味スペースとしての活用も可能。
静かな住環境でありながら、新八代駅や幹線道路へのアクセスも良好。
家族の成長やライフスタイルの変化に柔軟に対応できる、
“暮らしと働き方の自由度が高い一邸”です。
| 物件名 | 八代市上野町(新八代駅) 2階建 4LDK | 住所 | 熊本県八代市上野町 |
|---|---|---|---|
| 価格 | 2,650万円 | 交通 | 【JR鹿児島本線】新八代駅 徒歩30分 |
| 築年月 | 2016年8月 | 間取り | 4LDK |
| 間取り詳細 | 構造 | 木造 | |
| 駐車場 | 4台 | 土地権利 | 所有権 |
| 地目 | 宅地 | 土地面積 | 540.89㎡(163.62坪) |
| 建物面積 | 164.50㎡(49.76坪) | 用途地域 | 第一種中高層住居専用地域 |
| 建ぺい率 | 50% | 容積率 | 150% |
| 接道状況 | 南西5.8m 公道 接面38.5m、北2.5m 里道 接面27m | 上水道 | 公営 |
| 下水道 | 公共 | ガス | 都市ガス |
| 現況 | 居住中 | 引渡 | 相談 |
| 小学校区 | 八千把小学校 | 中学校区 | 第四中学校 |
| 設備 | IHクッキングヒーター、3口以上コンロ、床暖房(1階のみ)クローゼット、全居室フローリング、電気、エアコン、ウッドデッキ、照明器具 | 備考 |
熊本県・熊本市の不動産売買と営業時間 9:00 ~ 18:00

