
営業時間 9:00 ~ 18:00
営業時間 9:00 ~ 18:00
【国道3号線沿い・駐車場10台込・80坪の広々テナント】物販店・美容系・フィットネス・飲食店・事務所など、幅広い業種に対応できる柔軟性の高いテナントです。業種等、お気軽にお問合せください!
熊本県熊本市北区徳王2丁目1-48
330,000円
込
3ヶ月 / 無
無
JR鹿児島本線「西里駅」徒歩26分 / バス停「馬々鋏」徒歩7分
京町ラボ
〒860-0078 熊本市中央区京町 2-14-16
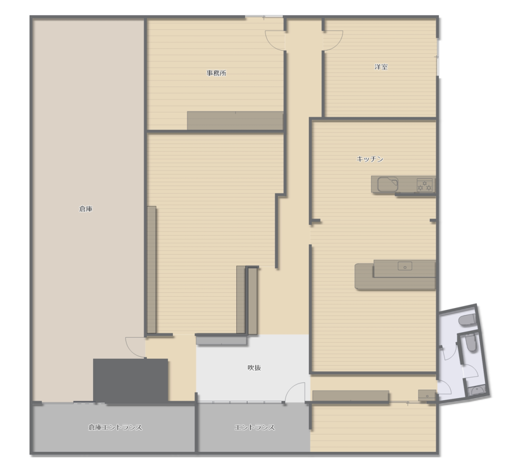
【国道3号線沿い・駐車場10台込・80坪の広々テナント】
ホームセンターナフコ北熊本店の目の前!
国道3号線沿いの好立地物件。
建物前面には来客用駐車場10台分を確保。
延床面積は約265㎡とゆとりがあり、
元カフェ・事務所として使用されていた約191㎡と、
物置用途の約74㎡が間仕切られているため、
「店舗+バックヤード」「事務所+倉庫」など用途に応じた使い分けが可能です。
物販店・美容系・フィットネス・飲食店・事務所など、
幅広い業種に対応できる柔軟性の高いテナントです。
視認性・駐車場・広さの三拍子がそろった物件。
業種等、お気軽にお問合せください!
| 物件名 | 境倉庫B・C | 住所 | 熊本県熊本市北区徳王2丁目1-48 |
|---|---|---|---|
| 賃料 | 330,000円 | 共益費 | 込 |
| 町費 | 水道料 | 実費 | |
| 築年月 | 1974年7月 | 交通 | JR鹿児島本線「西里駅」徒歩26分 / バス停「馬々鋏」徒歩7分 |
| 敷金 / 保証金 | 3ヶ月 / 無 | 礼金 | 無 |
| 敷引 | 保険等 | 火災保険 要 | |
| 使用部分面積 | 265.48㎡(80.31坪) | 建物構造 | 鉄筋コンクリート造 |
| ガス | プロパンガス | 駐車場 | 10台込 |
| 現況 | 空き家 | 契約期間 | 2年 |
| 入居日 | 即時 | 更新料 | |
| 仲介手数料 | 330,000円 | 設備 | トイレ2ヶ所あり 前面ガラス張り 看板取付スペースあり ロードサイド 土日・祝日利用可 駐車場10台込 |
| 備考 | ■鍵交換代 ■加入要/ジェイリース賃貸保証:初回契約時月額賃料100% ■短期解約違約金の定め有り | ||
熊本県・熊本市の不動産売買と営業時間 9:00 ~ 18:00

