
営業時間 9:00 ~ 18:00
営業時間 9:00 ~ 18:00
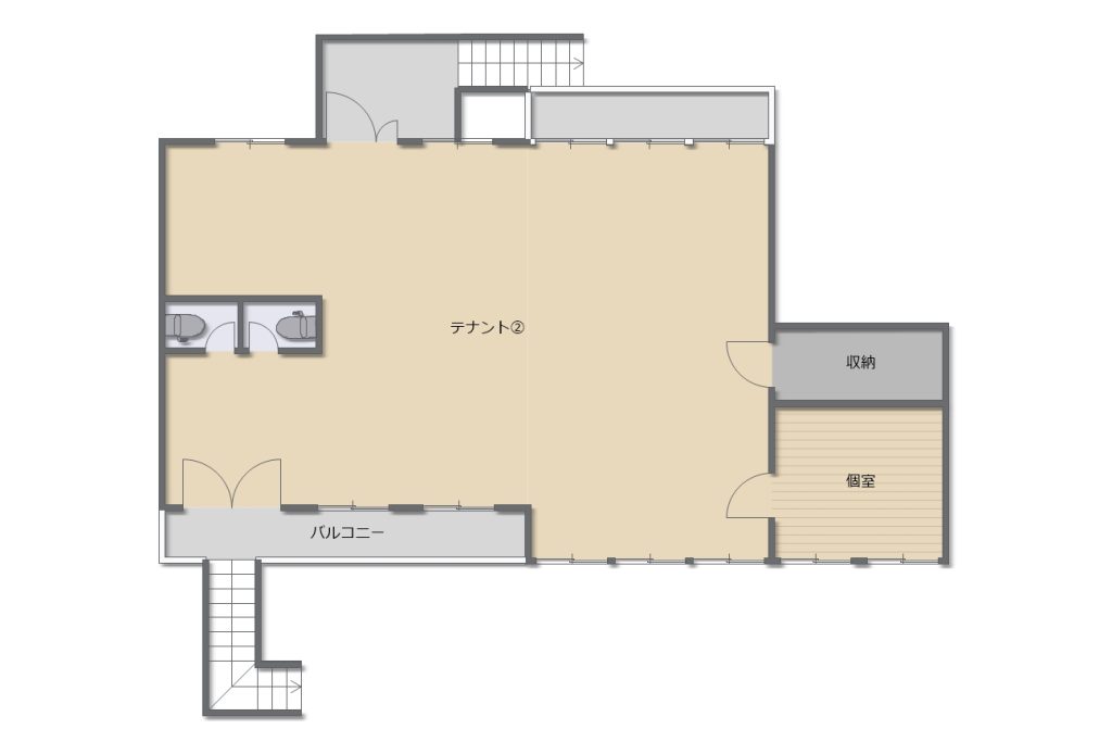
【人気の長嶺エリア・農免道路沿い!駐車場11台付の広々階テナント】エアコン3台・トイレ2ヶ所設置で幅広い用途に対応可能。ロードサイドならではの集客力と、広さ・設備・駐車場条件を兼ね備えたテナントです。
熊本市東区長嶺東一丁目2-55
385,000円
込
5ヶ月/無
無
バス停「長嶺四つ角」停歩3分
京町ラボ
〒860-0078 熊本市中央区京町 2-14-16
【人気の長嶺エリア・農免道路沿い!駐車場11台付の広々階テナント】
交通量の多い農免道路沿いに立地する、視認性・利便性に優れた広々140㎡の2階テナント。
事務所、クリニック、スクール、フィットネス、各種サービス店舗など、幅広い用途に対応可能です。
敷地内には駐車場11台分を確保!
エアコン完備、トイレも2ヶ所設置されているため、従業員数の多い事業や来客の多い業態でも快適にご利用いただけます。
市内主要幹線道路へのアクセスも良く、熊本市中心部や東バイパス方面への移動もスムーズ。
ロードサイドならではの集客力と、広さ・設備・駐車場条件を兼ね備えたテナントです。
| 物件名 | アバンテージュビル 2階テナント | 住所 | 熊本市東区長嶺東一丁目2-55 |
|---|---|---|---|
| 賃料 | 385,000円 | 共益費 | 込 |
| 町費 | 水道料 | 実費 | |
| 築年月 | 1979年11月 | 交通 | バス停「長嶺四つ角」停歩3分 |
| 敷金 / 保証金 | 5ヶ月/無 | 礼金 | 無 |
| 敷引 | 保険等 | 要 火災保険 | |
| 使用部分面積 | 140.00㎡(42.35坪) | 建物構造 | 鉄骨造 |
| ガス | 都市ガス | 駐車場 | 11台込 |
| 現況 | 空き家 | 契約期間 | 2年 |
| 入居日 | 即時 | 更新料 | |
| 仲介手数料 | 385,000円 | 設備 | トイレ2ヶ所 収納スペース エアコン 駐車場3台分以上 |
| 備考 | ■鍵交換代16,500円~ ■加入要/賃貸保証:初回契約時月額賃料100% ■短期解約違約金の定め有り | ||
熊本県・熊本市の不動産売買と営業時間 9:00 ~ 18:00

